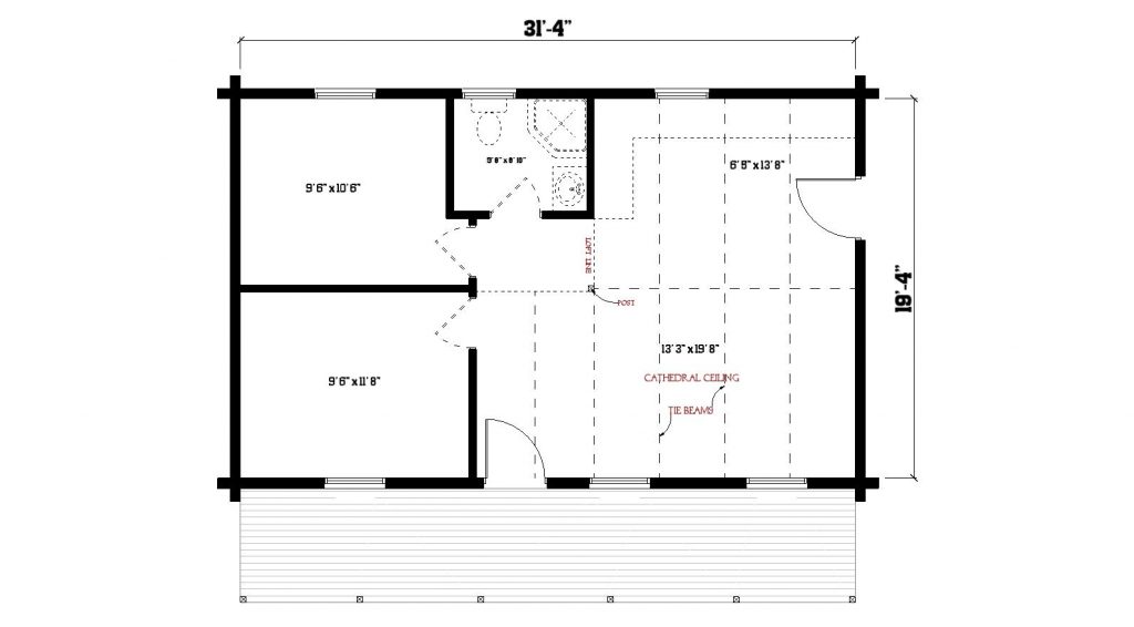
Saco

With a 204 sq. ft. L-shaped sleeping loft, the 20’x32′ Saco has lots of room for family and friends. Sit back and enjoy the view from a large 6’x32′ farmer’s porch.

First Floor
(Click to enlarge)

Loft
(Click to enlarge)